顶部2023
08-11
10:06
来源
分享
二、采购方式:公开询价
三、采购项目的预算:≤35000元(含税、运费和安装费;开具增值专用发票。投标总额超过限价作为废标)。
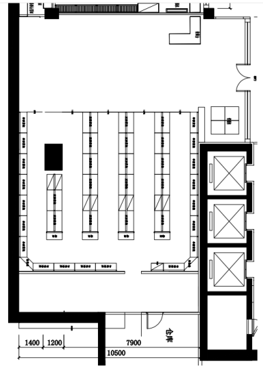
四、超市货架产品需求:(报价单、平面图摆放图及图样参考见附件)

五、供应商资格条件及要求:
1.具备独立法人资格和独立承担民事责任的能力。
2.法定代表人为同一个人的两个及两个以上法人,母公司、全资子公司及其控股公司,都不得在同一项目中同时参与,一经发现,将视同围标处理。
3. 参加本次采购活动前三年内,在经营活动中没有重大违法记录。
4.本项目不接受联合体投标。
5.提供的产品品质、规格(型号)、标的、数量、质量不得低于采购需求;提供售后服务质保期书面说明。
6.参加响应采购的供应商应当提供以下资料:
1.法人或者其他组织的营业执照;
2.法人代表或其委托代理人应携带本人身份证原件,委托代理人还应携带《法人代表授权委托书》原件;
3.参加本次采购活动前三年内,在经营活动中没有重大违法记录的书面声明。
六、产品技术性能要求:
颜色:白色(暂定)。
七、产品保修期:公司所有产品免费三年,终身维护(耗材及使用不当造成的人为损坏除外)。
八、付款方式:合同签订后,项目完成且采购人验收合格后一次性支付合同货款。
九、供货周期:合同生效后10-15天内交货。
十、合同主要条款见产品需求,参照政府采购合同格式条款签订。
十一、评审方法、标准:采用最低价法;根据采购需求、质量和服务相等且各项综合报价最低(以不含税价为审定价)的原则确定成交供应商。
十二、响应文件提交的截止时间、开启时间及地点:
1.截止时间及提交地点:2023年8月17日14时30分前将响应文件盖章密封一式三份(正本一份,副本二份,信封注明单位、地址、手机、联系人)寄送到以下地点。在截止时间后送达的响应文件为无效文件。
2.地点:南通市世纪大道8号南通日报社(南通报业传媒集团)2406室 联系人:李旋 电话:68218829 电子邮箱:190896297@qq.com
3.开启时间及地点:2023年8月17日14时30分 地点:南通市世纪大道8号2406室。
上述时间和地点如有变动,另行通知。
十三、联系方式
采购人:南通日报社(南通报业传媒集团)
地址:江苏省南通市崇川区世纪大道8号2406室 邮编:226018
联系人:张庆锋 电话:0513-68218829
如需现场勘察请与朱先生联系:13962900197
南通日报社(南通报业传媒集团)
2023年8月11日
附件一:报价单
附件二:货架摆放图
附件三:货架侧视图
附件四:图样参考

附件二:货架摆放图

附件三:货架侧视图

附件四:图样参考

南通日报社 2009-2021 版权所有
苏ICP备08106468-3号苏新网备2010048 互联网新闻信息服务许可证32120180013
南通报业传媒集团拥有南通网采编人员所创作作品之版权,未经报业集团书面授权,任何人不得转载、摘编或以其他方式使用和传播。
违法和不良信息举报电话:0513-68218870 邮箱:ntrb@163.com
发行热线:85118867 广告热线:85118892 爆料热线:85110110
联系地址:中国江苏省南通市世纪大道8号